Napredno pretraživanje
Istaknuto

Pregled

  • 3,000 m2
  • Godina izgradnje:2013-11-09
  • Ažurirano:
  • 9. siječnja 2026.

Lapadski Dvori

20€

Opis

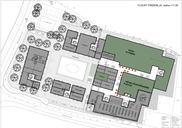
Kompleks Dvori Lapad jedan je od reprezentativnih stambeno‑poslovnih objekata u Dubrovniku

Kompleks Dvori Lapad jedan je od reprezentativnih stambeno‑poslovnih objekata u Dubrovniku, s izuzetnom frekvencijom lokalnog stanovništva i turista tijekom cijele godine, u neposrednoj blizini hotela, plaža, šetnice, brojnih ugostiteljskih i trgovačkih sadržaja te s osiguranim garažnim parkirnim mjestima.​

U ponudi su poslovni prostori različitih površina, od manjih jedinica pogodnih za butike, urede, salone i specijalizirane usluge, pa sve do većih cjelina koje se mogu prilagoditi za trgovinu, ugostiteljstvo, uslužne djelatnosti ili zdravstvene i uredske sadržaje. Prostori su projektirani kao fleksibilni, s mogućnošću prilagodbe rasporeda i uređenja prema specifičnim potrebama zakupnika. Najam parkirnih mjesta u garaži objekta po potrebi.

Prednosti najma u Dvorima Lapad uključuju:

  • Prestižnu lokaciju u Uvali Lapad s visokom vidljivošću i stalnim pješačkim prometom.​
  • Blizinu hotela, turističkih kapaciteta, šetnice i plaža, što osigurava kombinirani promet lokalnih klijenata i gostiju tijekom cijele godine.​
  • Mogućnost prilagodbe unutarnjeg uređenja i funkcionalne organizacije prostora poslovnom modelu zakupnika.​
  • Dostupnost garažnih i javnih parkirnih mjesta u sklopu i oko kompleksa.​

Ovisno o površini i namjeni prostora, zakupnina se definira po dogovoru, uz mogućnost ugovaranja dugoročnog najma i perioda prilagodbe za uređenje. Za ozbiljne zakupnike mogu se razmotriti i dodatni dogovori oko sudjelovanja u troškovima opremanja ili dužeg zakupa.

Stojimo Vam na raspolaganju za:

Detaljne razgovore o komercijalnim uvjetima zakupa, rokovima i tehničkim specifikacijama prostora.

Adresa: Masarykov put 3c, 20000, Dubrovnik
Grad:
Područje:
Poštanski broj: 20000
Zemlja: Hrvatska (Croatia)

Transport
Supermarketi
Škole
Restorani
Ljekarne
Bolnice

Prizemlje
Prvi sprat

Energetski razred: C
A+
A
B
Energetska klasa C
C
D
E
F
G
H

ID nekretnine: 20356
Cijena: 20€
Površina nekretnine: 3,000 m2
Godina Izgradnje: 2013-11-09

1.00
mjesečno
  • Rata i Kamate
  • Porez na nekretninu
  • Trošak Režija
  • Privatno hipotekarno osiguranje
0.06

Property Reviews

Nema recenzija
Potrebna je prijava da biste objavili recenziju

Usporedi Objave

Admin Info Only